Document Description

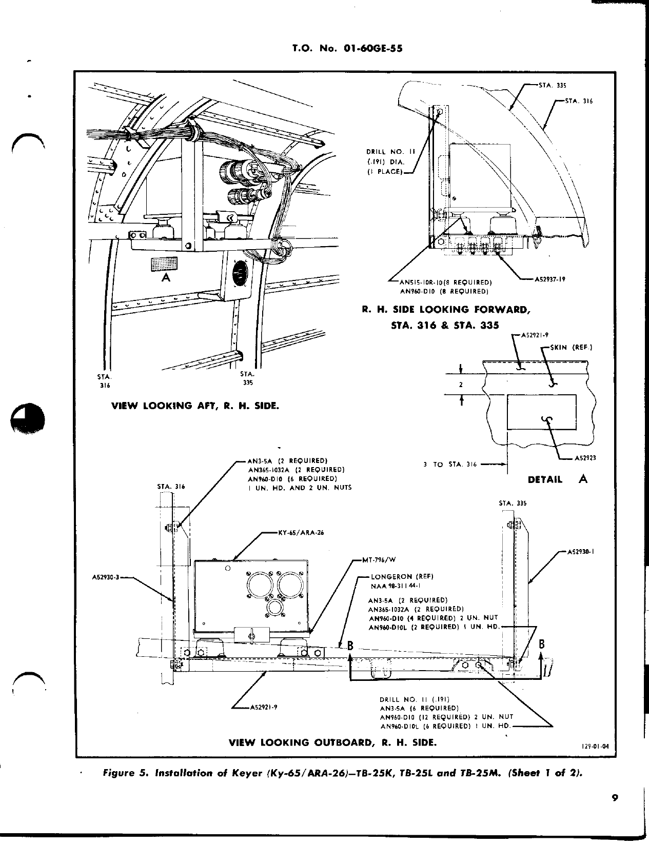
Installation of Radio Set AN-ARC-27 and Control Keyer Group AN-ARA-26 -- TB-25K, L, and M Aircraft, T.O. No. 01-60GE-55, 30-Dec-1953

Document Part Number

T.O. No. 01-60GE-55

Document Revision Date

30-Dec-1953

Already a Member?

Sign in to read this full document


Become a member

To access this and thousands of other manuals, plus over 400,000 warbird engineering drawings!

JOIN NOW


Don't want to join?

No problem - Click below to purchase a digital download of this manual from our storefront!

PURCHASE NOW

Sample Page: 1 of 4